Alamat: Jln. SDIT ARRAHMAN, Jatimulyo, Kecamatan Jati Agung, Kabupaten Lampung Selatan, Provinsi Lampung
Tersedia berbagai Type
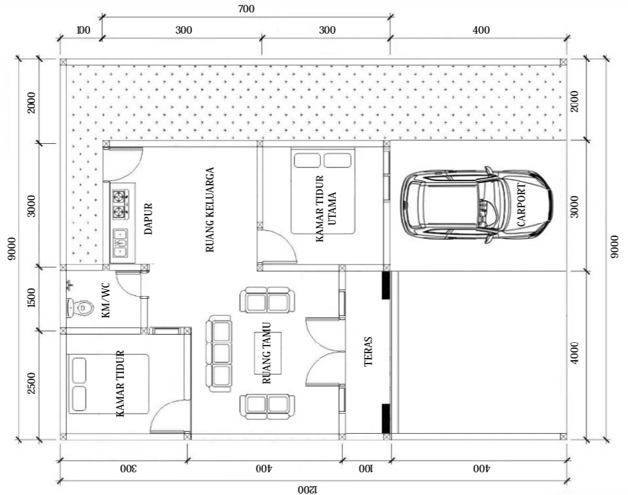
– Type 50/108
Harga
– Cash 315 Jt
– Cash Progres 315 Jt (50%, 30%, 20%)
– KPR Bank 315 Jt
Mekanisme KPR Bank
– Booking Fee 3 Jt
– DP Nol
– Angsuran Mulai 3 jt-an (15 Th)
– Harga Diluar Biaya Asuransi Jiwa & Kebakaran
Noted:
– Biaya Kelebihan Tanah 1,5 Jt/Meter
TATA RUANG & SPESIFIKASI
– Ruang Tamu
– Ruang Keluarga/Ruang Tengah
– Kamar Tidur 2
– Kamar Mandi 1
– Dapur + Washtafle
– Carport + Taman Depan
– Pondasi Batu Belah
– Dinding Bata Merah, Plester, Aci, Cat
– Lantai Granit 60 x 60
– Rangka Atap Baja Ringan
– Plapon GRC Model Trap
– Carport Keramik Kasar + Taman
– Closet Duduk + Shower
– Listrik 1300 Watt
– Air Sumur BOR, Mesin SIBLE, TORN 500 Liter
AKSES LOKASI
– 3 Menit dari Pasar Jatimulyo
– 10 Menit dari SMP, SMA,
– 5 Menit dari POM Bensin
– 10 Menit RS. AIRAN
– 10 Menit dari Pasar Tamin Waykandis
– 15 Menit dari Mall MBK
– 15 Menit dari Pusat Kota
Mumpung harganya masih promo Boss Qu, silahkan hubungi kami ARTIKA PROPERTI Cp. 082377263856 / 0816400958





